0

Propriété de charme et ses dépendances

Les Baux-de-Breteuil (27160)
Réf : 4827

Dans un bel environnement de forêt au calme, propriété authentique avec ses dépendances sur un très beau terrain arboré de 6 194 m2.

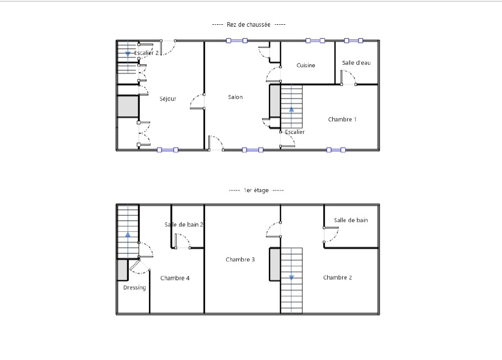
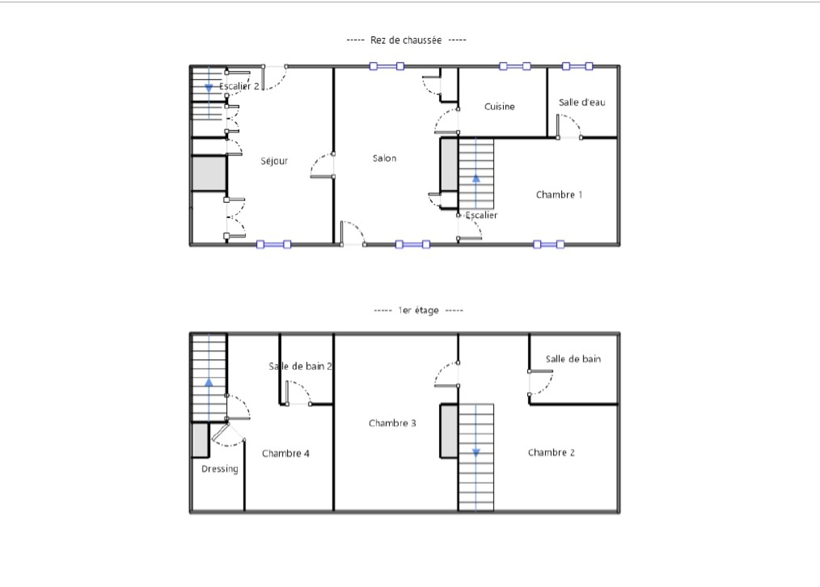
La maison de 125 m2 alliant authenticité et confort bénéficie d'une vie de plain pied. Elle se compose au rdc d'une cuisine, un salon avec cheminée, une salle à manger, une suite avec salle d'eau. A l'étage une grande pièce palière avec salle de bains puis une chambre et par un 2e accès, une suite avec dressing et salle de bains. La terrasse offre une vue dégagée sur le jardin planté de nombreuses essences et fruitiers. Chauffage électrique avec radiateurs pilotables à distance. Assainissement individuel.

Sur le terrain clos, une mare clôturée et 2 dépendances complètent la propriété. La 1e est une grange de 170 m2 divisée en garage, bûcher, atelier et grande pièce avec belle hauteur sous charpente. La 2e à rénover peut accueillir une maison d'amis indépendante (eau et électricité). Vous serez à 15 km de la gare de Verneuil d'Avre (axe Paris Montparnasse).

découvrir le bien
Prix du bien 298 000 €
Pièce(s) 6
Chambre(s) 4

Caractéristiques du bien

Caractéristiques Valeurs
Code postal 27160
Surface habitable (m²) 125 m²
surface terrain 6 194 m²
Nombre de chambre(s) 4
Nombre de pièces 6
Nombre de niveaux 1
Vue foret
Nb de salle de bains 2
Nb de salle d'eau 1
Cuisine Séparée
Type de cuisine SEMI-EQUIPEE
Mode de chauffage Electrique, Bois
Type de chauffage Radiateur, Cheminée
Format de chauffage Individuel, Individuel
Nombre de garage 2
Exposition Est-Ouest
Année de construction 1780
Terrain arboré OUI

Infos financières

Caractéristiques Valeurs
Prix de vente 298 000 €
Les honoraires d'agence seront intégralement à la charge du vendeur  
Taxe foncière annuelle 783 €

Bilans énergétiques

DPE GES
Ce bien vous intéresse ?
Fieldset par défaut
Fieldset par défaut
Validation

* Champs obligatoires

Contacter l'agence
Validation
Les informations recueillies sur ce formulaire sont enregistrées dans un fichier informatisé par La Boite Immo agissant comme Sous-traitant du traitement pour la gestion de la clientèle/prospects de l'Agence / du Réseau qui reste Responsable du Traitement de vos Données personnelles. La base légale du traitement repose sur l'intérêt légitime de l'Agence / du Réseau. Elles sont conservées jusqu'à demande de suppression et sont destinées à l'Agence / au Réseau. Conformément à la loi « informatique et libertés », vous disposez des droits d’accès, de rectification, d’effacement, d’opposition, de limitation et de portabilité de vos données. Vous pouvez retirer votre consentement à tout moment en contactant directement l’Agence / Le Réseau. Consultez le site https://cnil.fr/fr pour plus d’informations sur vos droits. Si vous estimez, après avoir contacté l'Agence / le Réseau, que vos droits « Informatique et Libertés » ne sont pas respectés, vous pouvez adresser une réclamation à la CNIL. Nous vous informons de l’existence de la liste d'opposition au démarchage téléphonique « Bloctel », sur laquelle vous pouvez vous inscrire ici : https://www.bloctel.gouv.fr Dans le cadre de la protection des Données personnelles, nous vous invitons à ne pas inscrire de Données sensibles dans le champ de saisie libre.
Ce site est protégé par reCAPTCHA, les Politiques de Confidentialité et les Conditions d'Utilisation de Google s'appliquent.