0

Ensemble Normand de charme en bord de rivière

Ajou (27410)
Réf : 4774

RARE ! En plein coeur de la vallée de la Risle, sans aucun voisinage proche avec plus de 400 m de rives.

Cet écrin de verdure de plus de 4 hectares abrite un ensemble du XVIIIe siècle comprenant une maison d'habitation entièrement rénovée, une dépendance aménagée et deux grandes dépendances.

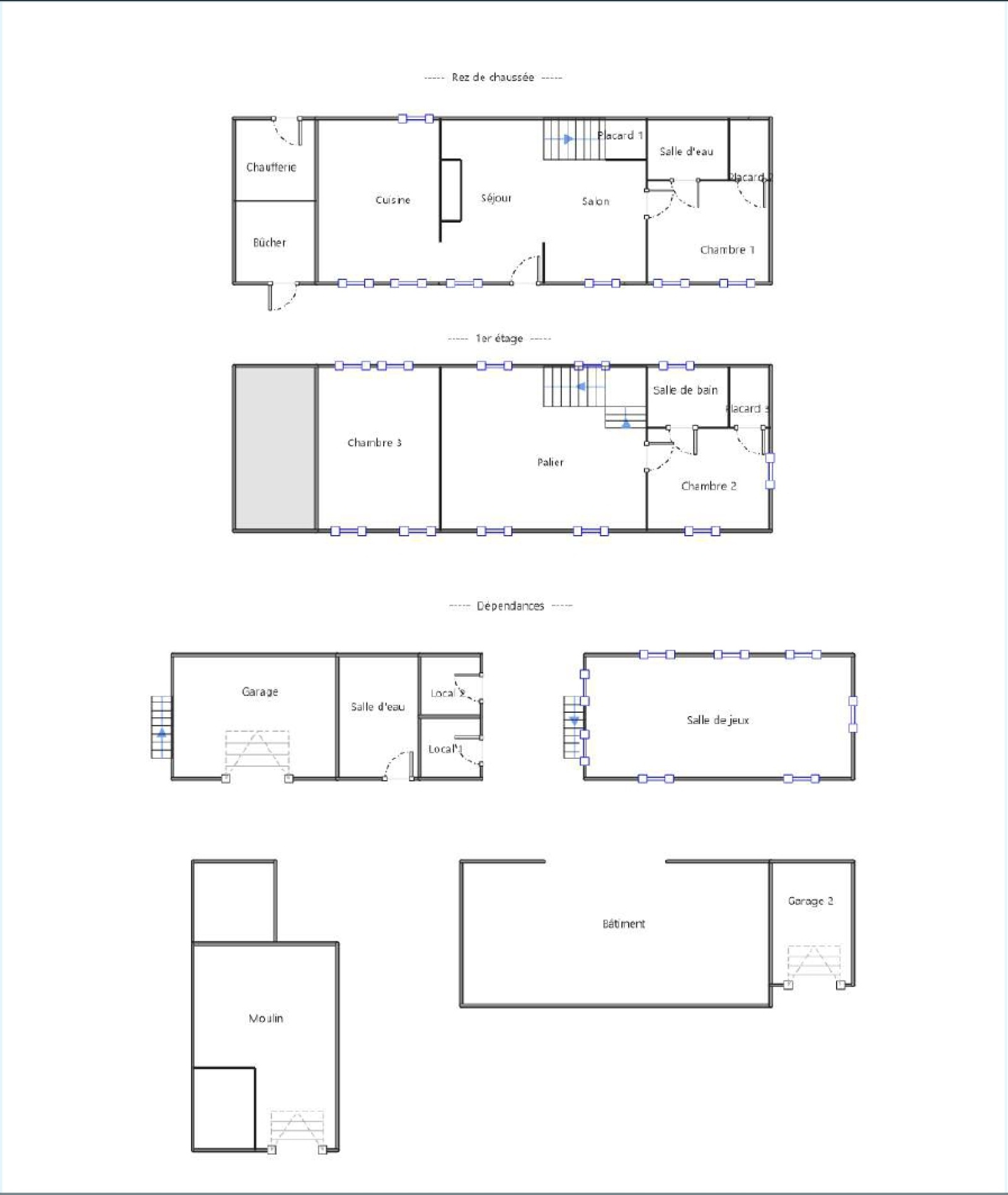
La maison est composée au rez de chaussée d'un salon avec cheminée, une cuisine dinatoire équipée, une chambre avec sa salle d' eau et WC. A l'étage, une vaste pièce palière et une chambre avec sa salle de bains. Par un escalier extérieur, une grande chambre. Chauffage par pompe à chaleur. Fenêtres en double vitrage. Fibre.

La dépendance aménagée abrite à l'étage une magnifique salle DOJO de 60 m2 et au rdc une salle d'eau avec WC, un garage et deux celliers. En complément : une grange de 100 m2 avec terrasse couverte et second garage ainsi qu'un ancien moulin. Idéal gîte. Le tout au coeur d'un terrain de 40 340m2 (dont un herbage de 2,69 hectares et un bois).

découvrir le bien
Prix du bien 549 000 €
Pièce(s) 6
Chambre(s) 4

Caractéristiques du bien

Caractéristiques Valeurs
Code postal 27410
Surface habitable (m²) 180 m²
surface terrain 4,03 ha
Nombre de chambre(s) 4
Nombre de pièces 6
Nombre de niveaux 1
Vue jardin et foret
Nb de salle de bains 1
Nb de salle d'eau 2
Cuisine Séparée
Type de cuisine Equipée
Mode de chauffage Pompe à chaleur, Fioul
Type de chauffage TRAD_TYPE_CHAUFF_AIR_EAU, TRAD_TYPE_CHAUFF_CHAUDIERE
Format de chauffage Individuel, Individuel
Terrasse OUI
Sous/sol SANS
Nombre de garage 2
Exposition Est-Ouest
Année de construction 1770
Terrain arboré OUI

Infos financières

Caractéristiques Valeurs
Prix de vente 549 000 €
Les honoraires d'agence seront intégralement à la charge du vendeur  
Taxe foncière annuelle 1 085 €

Bilans énergétiques

DPE GES
Ce bien vous intéresse ?
Fieldset par défaut
Fieldset par défaut
Validation

* Champs obligatoires

Contacter l'agence
Validation
Les informations recueillies sur ce formulaire sont enregistrées dans un fichier informatisé par La Boite Immo agissant comme Sous-traitant du traitement pour la gestion de la clientèle/prospects de l'Agence / du Réseau qui reste Responsable du Traitement de vos Données personnelles. La base légale du traitement repose sur l'intérêt légitime de l'Agence / du Réseau. Elles sont conservées jusqu'à demande de suppression et sont destinées à l'Agence / au Réseau. Conformément à la loi « informatique et libertés », vous disposez des droits d’accès, de rectification, d’effacement, d’opposition, de limitation et de portabilité de vos données. Vous pouvez retirer votre consentement à tout moment en contactant directement l’Agence / Le Réseau. Consultez le site https://cnil.fr/fr pour plus d’informations sur vos droits. Si vous estimez, après avoir contacté l'Agence / le Réseau, que vos droits « Informatique et Libertés » ne sont pas respectés, vous pouvez adresser une réclamation à la CNIL. Nous vous informons de l’existence de la liste d'opposition au démarchage téléphonique « Bloctel », sur laquelle vous pouvez vous inscrire ici : https://www.bloctel.gouv.fr Dans le cadre de la protection des Données personnelles, nous vous invitons à ne pas inscrire de Données sensibles dans le champ de saisie libre.
Ce site est protégé par reCAPTCHA, les Politiques de Confidentialité et les Conditions d'Utilisation de Google s'appliquent.