0

Maison de caractère 7 pièces

Collandres-Quincarnon (27190)
Réf : 4811

Sur la commune de Collandres Quincarnon, à 9 km de Conches et 8 km de la Ferrière sur Risle, maison de 5 chambres avec une vie de plain pied ayant bénéficié de rénovation intérieure récente. Exposée Sud, couverte en ardoises, la maison est construite sur un terrain clos de 4 953 m2 et a en dépendance une grande charreterie avec remise attenante.

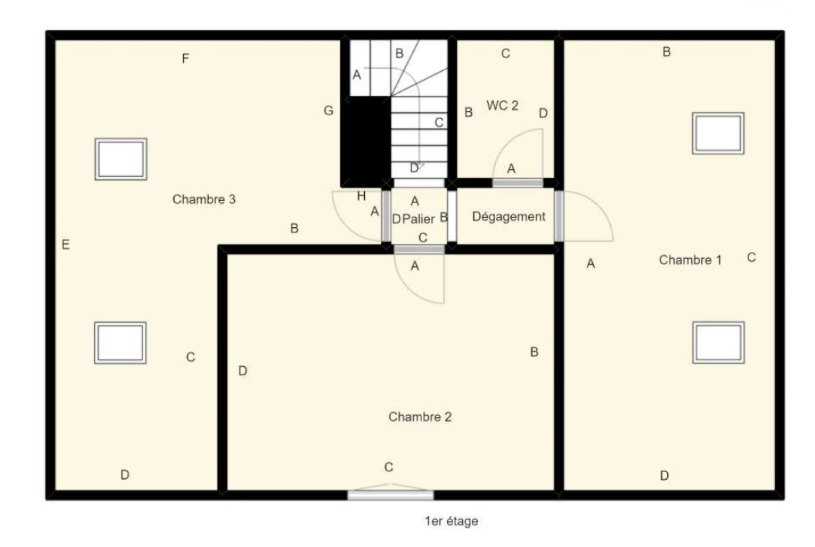
D'une surface habitable de 132 m2, la maison se compose au rdc d'une entrée distribuant un salon avec insert et la cuisine aménagée et équipée, et deux chambres sur parquet stratifié avec à la suite une salle d'eau avec WC. A l'étage, trois grandes chambres avec de légères mansardes et WC séparé.

Fenêtres double vitage PVC avec volets motorisés. Chauffage central gaz, insert et radiateurs électriques sur 2 chambres de l'étage. DPE D. Assainissement aux normes (fosse toutes eaux). Electricité aux normes.

Une belle cave partielle avec remise complète le bien. Sur l'avant du terrain, la dépendance permet de stationner plusieurs véhicules.

découvrir le bien
Prix du bien 188 500 €
Pièce(s) 7
Chambre(s) 5

Caractéristiques du bien

Caractéristiques Valeurs
Code postal 27190
Surface habitable (m²) 132 m²
surface terrain 4 953 m²
Nombre de chambre(s) 5
Nombre de pièces 7
Nombre de niveaux 1
Vue sur jardin
Nb de salle d'eau 1
Cuisine Américaine
Type de cuisine Equipée
Mode de chauffage Gaz, Bois
Type de chauffage TRAD_TYPE_CHAUFF_CHAUDIERE, Poêle
Format de chauffage AUTRE, AUTRE
Nombre de garage 2
Cave OUI
Surface cave (m²) 30
Exposition Sud
Année de construction 1880

Infos financières

Caractéristiques Valeurs
Prix de vente 188 500 €
Les honoraires d'agence seront intégralement à la charge du vendeur  
Taxe foncière annuelle 1 518 €

Bilans énergétiques

DPE GES
Ce bien vous intéresse ?
Fieldset par défaut
Fieldset par défaut
Validation

* Champs obligatoires

Contacter l'agence
Validation
Les informations recueillies sur ce formulaire sont enregistrées dans un fichier informatisé par La Boite Immo agissant comme Sous-traitant du traitement pour la gestion de la clientèle/prospects de l'Agence / du Réseau qui reste Responsable du Traitement de vos Données personnelles.
La base légale du traitement repose sur l’intérêt légitime de l'Agence / du Réseau.
Elles sont conservées jusqu'à demande de suppression et sont destinées à l'Agence / au Réseau.
Conformément à la loi « informatique et libertés », vous pouvez exercer votre droit d'accès aux données vous concernant et les faire rectifier en contactant l'Agence / le Réseau.
Si vous estimez, après avoir contacté l'Agence / le Réseau, que vos droits « Informatique et Libertés » ne sont pas respectés, vous pouvez adresser une réclamation à la CNIL.
Nous vous informons de l’existence de la liste d'opposition au démarchage téléphonique « Bloctel », sur laquelle vous pouvez vous inscrire ici : https://www.bloctel.gouv.fr 
Dans le cadre de la protection des Données personnelles, nous vous invitons à ne pas inscrire de Données sensibles dans le champ de saisie libre
Ce site est protégé par reCAPTCHA, les Politiques de Confidentialité et les Conditions d'Utilisation de Google s'appliquent.