0

Maison de plain pied, 3 ch, sous-sol complet - Le Fidelaire

Le Fidelaire (27190)
Réf : 4814

Dans un environnement calme et verdoyant, à proximité de la forêt, cette jolie maison en parfait état d'entretien vous offre une vie entièrement de plain pied.

Tous les aménagements et matériaux sont de belle facture, vous n'aurez aucun travaux à prévoir.

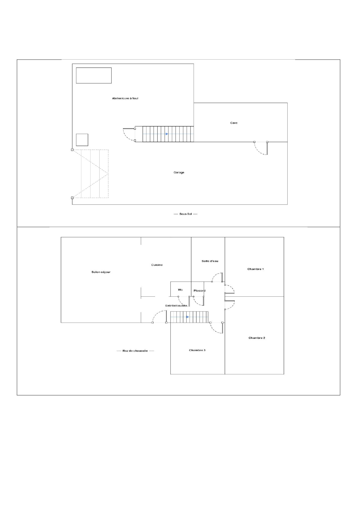
Située au Fidelaire, village avec commodités et écoles, la maison offre sur 90 m2 : une entrée dégagée avec placard, une cuisine équipée récente ouverte sur le lumineux séjour disposant d'un poêle à bois. Deux portes fenêtres donnent accès sur la vaste terrasse avec pergola Alu bioclimatique.

Trois belles chambres dont 2 avec placards intégrés et aménagés, une salle d'eau, WC séparé.

Vous disposerez également d'un sous-sol de 90 m2, accessible de l'intérieur, et contenant deux emplacements voitures, une chaufferie, une cave, un atelier

Fenêtres mixtes (PVC, Alu), volets Alu, chauffage central fioul et poêle à bois récent, adoucisseur d'eau.

Agréable terrain arboré de 1628 m2, clos de haies. Portail motorisé.

découvrir le bien
Prix du bien 247 000 €
Pièce(s) 4
Chambre(s) 3

Caractéristiques du bien

Caractéristiques Valeurs
Code postal 27190
Surface habitable (m²) 90 m²
surface terrain 1 628 m²
Nombre de chambre(s) 3
Nombre de pièces 4
Vue sur jardin
Nb de salle d'eau 1
Cuisine Séparée
Type de cuisine Equipée
Mode de chauffage Fioul, Bois
Type de chauffage TRAD_TYPE_CHAUFF_CHAUDIERE, Poêle
Format de chauffage Individuel, Individuel
Terrasse OUI
Sous/sol AVEC
Nombre de garage 1
Cave OUI
Exposition Est-Ouest
Année de construction 1982
Terrain arboré OUI

Infos financières

Caractéristiques Valeurs
Prix de vente 247 000 €
Les honoraires d'agence seront intégralement à la charge du vendeur  
Taxe foncière annuelle 1 041 €

Bilans énergétiques

DPE GES
Ce bien vous intéresse ?
Fieldset par défaut
Fieldset par défaut
Validation

* Champs obligatoires

Contacter l'agence
Validation
Les informations recueillies sur ce formulaire sont enregistrées dans un fichier informatisé par La Boite Immo agissant comme Sous-traitant du traitement pour la gestion de la clientèle/prospects de l'Agence / du Réseau qui reste Responsable du Traitement de vos Données personnelles.
La base légale du traitement repose sur l’intérêt légitime de l'Agence / du Réseau.
Elles sont conservées jusqu'à demande de suppression et sont destinées à l'Agence / au Réseau.
Conformément à la loi « informatique et libertés », vous pouvez exercer votre droit d'accès aux données vous concernant et les faire rectifier en contactant l'Agence / le Réseau.
Si vous estimez, après avoir contacté l'Agence / le Réseau, que vos droits « Informatique et Libertés » ne sont pas respectés, vous pouvez adresser une réclamation à la CNIL.
Nous vous informons de l’existence de la liste d'opposition au démarchage téléphonique « Bloctel », sur laquelle vous pouvez vous inscrire ici : https://www.bloctel.gouv.fr 
Dans le cadre de la protection des Données personnelles, nous vous invitons à ne pas inscrire de Données sensibles dans le champ de saisie libre
Ce site est protégé par reCAPTCHA, les Politiques de Confidentialité et les Conditions d'Utilisation de Google s'appliquent.