0

Longère normande - Conches

Conches-en-Ouche (27190)
Réf : 4782

Rare dans Conches à pied des commerces et écoles, longère normande bénéficiant d'une vie de plain pied sur un joli terrain arboré de 1 519 m2, et une terrasse exposée Sud.

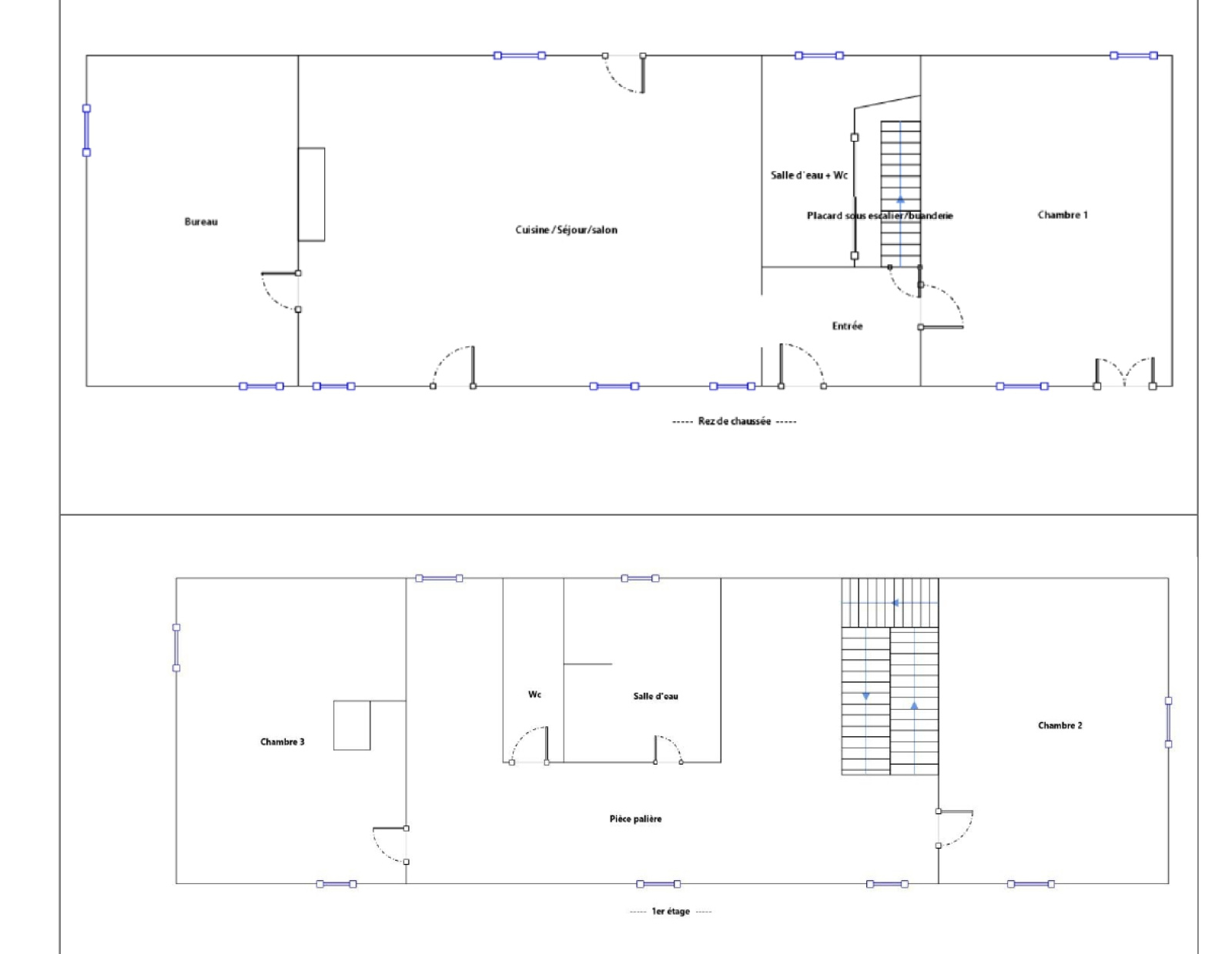
La maison se compose d'une entrée, une pièce de vie de 42 m2 avec cuisine équipée ouverte sur le salon avec insert, deux belles chambres (15 m2 et 20 m2) et une salle d'eau avec WC. A l'étage sous combles : un palier servant de bureau dessert une chambre, une salle d'eau, WC séparé et une petite chambre avec espace bureau. Chauffage central gaz de ville, fenêtres double vitrage bois. Adoucisseur d'eau. Raccordée au tout à l'égout. Fibre installée. Sur le terrain de 1519 m2, en partie clos de murs, se trouvent une dépendance à usage de remise ainsi qu'un abri de jardin.

Prix du bien 240 000 €
Pièce(s) 6
Chambre(s) 3

Caractéristiques du bien

Caractéristiques Valeurs
Code postal 27190
Surface habitable (m²) 120 m²
surface terrain 1 519 m²
Nombre de chambre(s) 3
Nombre de pièces 6
Vue Jardin
Nb de salle d'eau 2
Cuisine Américaine
Type de cuisine Equipée
Mode de chauffage Gaz
Type de chauffage TRAD_TYPE_CHAUFF_CHAUDIERE
Format de chauffage Central
Terrasse OUI
Exposition Sud
Terrain arboré OUI

Infos financières

Caractéristiques Valeurs
Prix de vente 240 000 €
Les honoraires d'agence seront intégralement à la charge du vendeur  
Taxe foncière annuelle 1 203 €

Bilans énergétiques

DPE GES
Ce bien vous intéresse ?
Fieldset par défaut
Fieldset par défaut
Validation

* Champs obligatoires

Contacter l'agence
Validation
Les informations recueillies sur ce formulaire sont enregistrées dans un fichier informatisé par La Boite Immo agissant comme Sous-traitant du traitement pour la gestion de la clientèle/prospects de l'Agence / du Réseau qui reste Responsable du Traitement de vos Données personnelles. La base légale du traitement repose sur l'intérêt légitime de l'Agence / du Réseau. Elles sont conservées jusqu'à demande de suppression et sont destinées à l'Agence / au Réseau. Conformément à la loi « informatique et libertés », vous disposez des droits d’accès, de rectification, d’effacement, d’opposition, de limitation et de portabilité de vos données. Vous pouvez retirer votre consentement à tout moment en contactant directement l’Agence / Le Réseau. Consultez le site https://cnil.fr/fr pour plus d’informations sur vos droits. Si vous estimez, après avoir contacté l'Agence / le Réseau, que vos droits « Informatique et Libertés » ne sont pas respectés, vous pouvez adresser une réclamation à la CNIL. Nous vous informons de l’existence de la liste d'opposition au démarchage téléphonique « Bloctel », sur laquelle vous pouvez vous inscrire ici : https://www.bloctel.gouv.fr Dans le cadre de la protection des Données personnelles, nous vous invitons à ne pas inscrire de Données sensibles dans le champ de saisie libre.
Ce site est protégé par reCAPTCHA, les Politiques de Confidentialité et les Conditions d'Utilisation de Google s'appliquent.
Ces biens peuvent vous intéresser