0

EXCLUSIVITÉ SAINT CLAIR - MAISON 3 CHAMBRES

Conches-en-Ouche (27190)
Réf : 4747

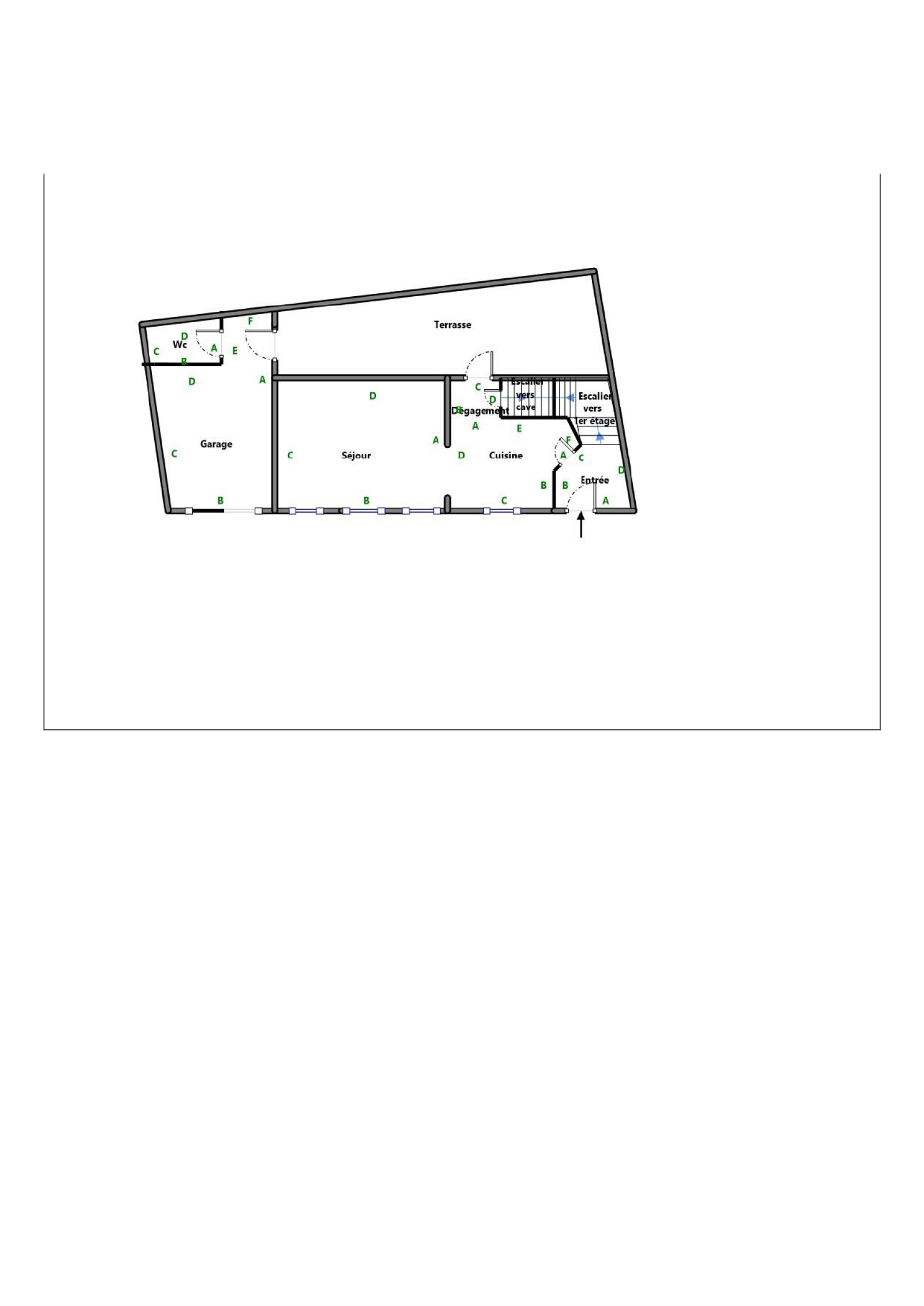
Maison dans le centre ville de CONCHES. A pied des commerces, maison de ville mitoyenne de deux côtés avec courette exposée Sud comprenant au rdc d'une pièce de vie avec cuisine ouverte équipée d'un ilot central, avec accès à une courette et au garage avec espace buanderie et WC. A l'étage entièrement parqueté, un couloir distribue 3 chambres lumineuses, une salle de bains avec double vasque et WC. Une cave complète le bien. Chauffage central gaz de ville et fenêtres PVC double vitrage. Courette. Garage attenant. Fibre déployée. Raccordement au tout à l'égout. Isolation par l'extérieur réalisée récemment.

Prix du bien
Pièce(s) 4
Chambre(s) 3

Caractéristiques du bien

Caractéristiques Valeurs
Code postal 27190
Surface habitable (m²) 80 m²
surface terrain 85 m²
Nombre de chambre(s) 3
Nombre de pièces 4
Nombre de niveaux 1
Vue rue
Nb de salle de bains 1
Cuisine Américaine
Type de cuisine SEMI-EQUIPEE
Mode de chauffage Gaz de ville
Type de chauffage TRAD_TYPE_CHAUFF_CHAUDIERE
Format de chauffage Individuel
Murs mitoyens 2
Nombre de garage 1
Cave OUI
Surface cave (m²) 15
Exposition Sud-Ouest
Année de construction 1900

Infos financières

Caractéristiques Valeurs
Les honoraires d'agence seront intégralement à la charge du vendeur  
Taxe foncière annuelle 955 €